Ufficio - Studio in Vendita

€ 115.000
1
219 m²
1
1

Nota

Annuncio aggiornato il 28/06/2023
Descrizione

riferimento: 831 P G

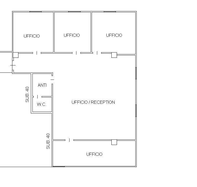
MIRA UFFICIO MQ 219

MIRA: 2 Uffici confinanti per un totale di mq 219 suddiviso in 2 grandi vani , 3 vani e 2 servizi piano primo Classe Energetica: Non indicata
Caratteristiche
Contratto
Vendita
Tipologia
Ufficio - Studio | Classe immobile economica
Superficie
219 m²
Locali
1 locale, 1 bagno
Piano
Piani edificio
-3
Disponibilità
Libero
Dettaglio superficie

Ufficio o Studio

Piano
1
Superficie
219,0 m²
Coefficiente
100%
Tipo superficie
Principale
Sup. commerciale
219,0 m²
Informazioni sul prezzo
Prezzo
€ 115.000
Prezzo al m²
525 €/m²
New
Efficienza energetica
  • Stato

    Buono / Abitabile
  • Certificazione energetica

    Non classificabile
Planimetria
Foto
Foto
Scopri ogni angolo dell'immobile
+10
Opzioni aggiuntive

Contatta l'inserzionista

Oppure