Ufficio - Studio in Affitto

€ 1.500/mese
1
200 m²

Nota

Zenso

Prestiti online e veloci

Confronta le offerte in 1 minuto

Annuncio aggiornato il 10/04/2025
Descrizione

riferimento: A000174

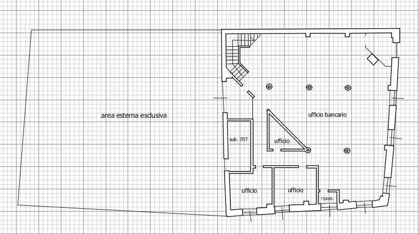
STABILE SU TRE LIVELLI CON PARCHEGGIO ESCLUSIVO

In pieno centro, immobile cielo/terra su tre livelli, con di 200 mq piano terra, ex filiale istituto di credito, con area esterna esclusiva da poter utilizzare come parcheggio/dehor commerciale.
Possibile ampliamento ai piani superiori con cambio di destinazione d'uso di locali attualmente destinati ad uso residenziale/commerciale/direzionale.

L'agenzia immobiliare Tempozero, oltre alle normali attività di agenzia, affronta con i propri clienti la fase istruttoria precedente all’atto notarile, mettendo a frutto tutta l'esperienza nell’analisi dei documenti che consentono di acquistare un immobile con la massima serenità.
Inoltre siamo specializzati nella commercializzazione di tutti quegli immobili soggetti a procedure esecutive che vanno dal semplice incaglio nel pre-contenzioso fino all’esecuzione giudiziaria (ASTE), compreso il ramo fallimentare.
Caratteristiche
Contratto
Affitto
Tipologia
Ufficio - Studio | Classe immobile signorile
Superficie
200 m²
Locali
1 locale
Piani edificio
3
Altre caratteristiche
  • Infissi esterni in vetro / metallo
Informazioni sul prezzo
Prezzo
€ 1.500/mese
Prezzo al m²
8 €/m²
New
Dettaglio dei costi
Cauzione
Non indicata
Efficienza energetica

Consumo di energia

49.24 kWh/m² annoE

Planimetria
Scopri ogni angolo dell'immobile
+55
Opzioni aggiuntive

Contatta l'inserzionista

Oppure