Locale commerciale in Vendita

€ 390.000
3
760 m²
3+
S - T

Nota

Annuncio aggiornato il 12/07/2025
Descrizione

riferimento: 696

Vendesi locale Mugnano

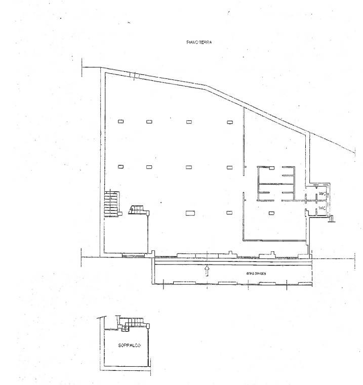
Mugnano – Via Mugnano Melito – Proponiamo in vendita locale commerciale di circa M² 760 complessivi, così composto:

· Area commerciale sita al piano terra di circa M² 420 alto circa mt 3,5 con ben 5 vetrine fronte strada;

· Piano interrato di circa M² 340 alto circa mt 3 accessibile sia da una scala interna che da una discesa carrabile dall’esterno, adatto per area parcheggio clienti/deposito

Il locale risulta essere molto luminoso e ben collegato in quanto vicino ai principali svincoli e alla metropolitana che si trova alle spalle.

Richiesta € 390.000

Quanto vale il tuo immobile? Rivolgiti per una valutazione gratuita alla nostra agenzia Andromeda Immobiliare S.r.l. Metteremo a tua disposizione un Team di professionisti esperti, con esperienza pluriennale in intermediazione ed affari immobiliari che possiedono requisiti ed adeguate conoscenze che garantiscono un prezioso aiuto sia per gli acquirenti che per i venditori in tutte le fasi di una compravendita immobiliare. Per qualsiasi informazione e/o per fissare un appuntamento senza impegno, contattare il nostro ufficio ANDROMEDA SRL Via Lipari n° 6 – Casoria - al numero di telefono 081/577-51-67 oppure all'indirizzo mail: info@immobiliareandromeda.it

Presso la nostra agenzia, è possibile su richiesta, grazie ai nostri professionisti ricevere una consulenza gratuita ed accedere ad un'ampia gamma di prodotti creditizi e assicurativi come: Mutui prima, seconda casa e ristrutturazione; Sostituzione o Surroga del Mutuo; Cessioni del Quinto dello Stipendio o Pensione; Consolidamento Debiti; Prodotti Assicurativi per la Famiglia, ramo Danni e Vita. Seguici anche su Facebook o su Instagram, clicca ''mi piace'' sulla pagina Andromeda_Immobiliare
Se vuoi saperne di più, puoi parlare con Caterina Annibale.
Caratteristiche
Contratto
Vendita
Tipologia
Locale commerciale
Superficie
760 m²
Locali
3 locali, 3+ bagni, doppio ingresso
Piano
2 piani: da Seminterrato a Piano terra
Piani edificio
2
Altezza soffitti
3,5 m
Vetrine
5 vetrine su strada
Altre caratteristiche
  • Saracinesche automatiche
Dettaglio superficie

Laboratorio

Piano
Piano terra
Superficie
420,0 m²
Coefficiente
100%
Tipo superficie
Principale
Sup. commerciale
420,0 m²

Laboratorio

Piano
Seminterrato
Superficie
340,0 m²
Coefficiente
100%
Tipo superficie
Principale
Sup. commerciale
340,0 m²
Informazioni sul prezzo
Prezzo
€ 390.000
Prezzo al m²
513 €/m²
New
Dettaglio dei costi
Spese condominio
Nessuna spesa condominiale
Efficienza energetica

Consumo di energia

100 kWh/m² annoA4

Planimetria
planimetria plt pt
planimetria plt s1
Scopri ogni angolo dell'immobile
+13
Opzioni aggiuntive

Contatta l'inserzionista

Oppure