

Nota
riferimento: VL67
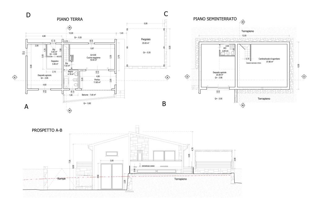
VENDITA - ZONA PISCINA VALLE DEI PINI - Lotto di terreno edificabile mq 3000 con progetto approvato e oneri versati per la realizzazione di una villetta in C/da Gabbara - San Cataldo
Anno di costruzione
2019Stato
Nuovo / In costruzioneCertificazione energetica
Non classificabile