Cascina Strada San Nicolao 87, Nizza Monferrato

€ 1.500.000
5+
99.245 m²
3+
No
Balcone
Arredato
Cantina

Nota

Annuncio aggiornato il 02/04/2026
Descrizione

riferimento: B043

AZIENDA AGRICOLA VITIVINICOLA E AGRITURISMO

Contatto diretto Geom. Roberto Nicolino 3356280141
Vendita di proprietà immobiliare costituita di cascina ristrutturata adibita ad agriturismo e cantina, e 94.226 metri quadri catastali di terreno agricolo atti perlopiù a vigneto suddivisi come segue:
- lotto di 6.540 metri quadri catastali attualmente vitati a “Nebbiolo”;
- lotto di 23.250 metri quadri catastali attualmente vitati a “Barbera Superiore”;
- lotto di 56.493 metri quadri catastali vitato a Barbera, Chardonay, Dolcetto, Freisa e Moscato Bianco;
- lotto di 7.410 metri quadri catastali seminativo;
- lotto di 431 metri quadri catastali frutteto;
- lotto di 97 metri quadri catastali prato arborato.
Il lotto su cui insistono fabbricati adibiti ad agriturismo, cantine e magazzini ha una superficie di 3.929 metri quadri catastali.
La proprietà è un'ottima occasione per nuovi investitori nel settore vinicolo.
Se vuoi saperne di più, puoi parlare con Roberto Nicolino.
Caratteristiche
Tipologia
Cascina | Intera proprietà | Classe immobile signorile
Contratto
Vendita
Piano
Da seminterrato a piano terra, 1
Piani edificio
3
Ascensore
No
Superficie
99.245 m²
Locali
5+
Camere da letto
10
Cucina
Cucina abitabile
Bagni
3+
Arredato
Balcone
Terrazzo
No
Box, posti auto
2 in box privato/box in garage, 10 posto auto
Riscaldamento
Autonomo, a radiatori, alimentato a metano
Altre caratteristiche
  • Esposizione esterna
  • Infissi esterni in doppio vetro / legno
  • Taverna
  • Impianto tv singolo
  • Piscina
Dettaglio superficie

Abitazione

Piano
Piano terra
Superficie
95,0 m²
Coefficiente
100%
Tipo superficie
Principale
Sup. commerciale
95,0 m²

Abitazione

Piano
1
Superficie
300,0 m²
Coefficiente
100%
Tipo superficie
Principale
Sup. commerciale
300,0 m²

Cantina

Piano
Piano terra
Superficie
450,0 m²
Coefficiente
100%
Tipo superficie
Principale
Sup. commerciale
450,0 m²

Altro

Piano
Piano terra
Superficie
100,0 m²
Coefficiente
100%
Tipo superficie
Principale
Sup. commerciale
100,0 m²

Altro

Piano
Seminterrato
Superficie
50,0 m²
Coefficiente
100%
Tipo superficie
Principale
Sup. commerciale
50,0 m²

Altro

Piano
Seminterrato
Superficie
95,0 m²
Coefficiente
100%
Tipo superficie
Principale
Sup. commerciale
95,0 m²

Terreno

Piano
Piano terra
Superficie
98.155,0 m²
Coefficiente
100%
Tipo superficie
Principale
Sup. commerciale
98.155,0 m²
Informazioni sul prezzo
Prezzo
€ 1.500.000
Prezzo al m²
15 €/m²
Dettaglio dei costi
Spese condominio
Nessuna spesa condominiale
Efficienza energetica

Consumo di energia

108.33 kWh/m² annoD

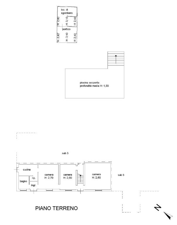
Planimetria
Planimetrie
Planimetrie
Formaps Nizza Monferrato f26 p313 - Lotto
Formaps Nizza Monferrato f32 p34 - Lotto
Scopri ogni angolo dell'immobile
+31
Mutuo
%
Durata del mutuo

Rata da € 4.421 al mese

€ 450.000 (30%)

€ 1.050.000 (70%)

Vuoi sapere che mutuo puoi richiedere?

Opzioni aggiuntive

Contatta l'inserzionista

Oppure