Rustico via Europa, Centro, Racale

€ 80.000
5+
339 m²
2
No
Balcone
Terrazzo

Nota

Annuncio aggiornato il 03/09/2025
Descrizione

riferimento: EK-99917396

Rustico di nuova costruzione in vendita a Racale, Via Europa

Fra Racale e Alliste in zona tranquilla, proponiamo in vendita unico complesso immobiliare DIVISIBILE e COMPRAVENDIBILE in due blocchi adiacenti, disposti su 3 livelli.

L’intero complesso è disposto su 3 piani:

– piano seminterrato: autorimessa, divisibile in più box auto.

– piano rialzato: locale commerciale, ma volendo si può cambiare la destinazione in abitazione.

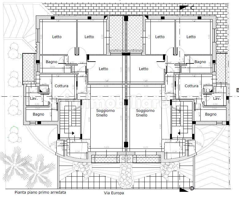
– 1° piano: n2 appartamenti; il primo con tramezzatura interna completata, il secondo da ultimare a discrezione dell’acquirente.

IL FABBRICATO PUO’ ESSERE ACQUISTATO A SINGOLO BLOCCO OPPURE PER INTERO (CON LE DOVUTE CONSIDERAZIONI SUL PREZZO).

COMPOSIZIONE 1° BLOCCO:

Appartamento n1 al piano primo con disposizione interna ultimata. Composto da 3 camere da letto, 2 bagni, soggiorno, cucina, vanno lavanderia, balcone antistante e latistante;

locale commerciale/abitazione al piano rialzato composto da un unico grande ambiente, bagno, terrazzino antistante d’ingresso;

autorimessa al piano seminterrato composta da un unico ambiente con 3 vani tecnici e un vano scala che permette l’accesso ai piani superiori.

Prezzo 95.000€

COMPOSIZIONE 2° BLOCCO:

Appartamento n2 al piano primo, con disposizione interna da completare.

locale commerciale/abitazione al piano rialzato composto da un unico grande ambiente, bagno, terrazzino antistante d’ingresso;

autorimessa al piano seminterrato composta da un unico ambiente con 3 vani tecnici e un vano scala che permette l’accesso ai piani superiori.

Prezzo 95.000€

VARIE FORME DI INVESTIMENTO!!
Se vuoi saperne di più, puoi parlare con Marco Santoro.
Caratteristiche
Tipologia
Rustico | Intera proprietà | Classe immobile media
Contratto
Vendita
Piano
Seminterrato, piano rialzato, 1
Piani edificio
3
Ascensore
No
Superficie
339 m²
Locali
5+
Camere da letto
3
Cucina
Cucina abitabile
Bagni
2
Arredato
No
Balcone
Terrazzo
Box, posti auto
2 in box privato/box in garage, 1 in parcheggio/garage comune
Altre caratteristiche
  • Caminetto
  • Esposizione esterna
Dettaglio superficie

Abitazione

Piano
1
Superficie
145,0 m²
Coefficiente
100%
Tipo superficie
Principale
Sup. commerciale
145,0 m²

Box o garage

Piano
Seminterrato
Superficie
128,0 m²
Coefficiente
50%
Tipo superficie
Principale
Sup. commerciale
64,0 m²

Abitazione

Piano
Piano rialzato
Superficie
130,0 m²
Coefficiente
100%
Tipo superficie
Principale
Sup. commerciale
130,0 m²
Informazioni sul prezzo
Prezzo
€ 80.000
Prezzo al m²
236 €/m²
New
Dettaglio dei costi
Spese condominio
Nessuna spesa condominiale
Efficienza energetica
  • Anno di costruzione

    2010
  • Stato

    Nuovo / In costruzione
  • Certificazione energetica

    Esente
Planimetria
piano seminterrato
piano rialzato
piano primo
Scopri ogni angolo dell'immobile
+37
Mutuo
%
Durata del mutuo

Rata da € 232 al mese

€ 24.000 (30%)

€ 56.000 (70%)

Vuoi sapere che mutuo puoi richiedere?

Opzioni aggiuntive

Contatta l'inserzionista

Oppure