Wohnung in Auktion via Appennini 25, Mailand

ab € 180.180,00
4
104 m²
7
Ja
Balkon
Keller

Notiz

Anzeige aktualisiert am: 20.02.2026
Beschreibung

Referenz: A4989

PER INFORMAZIONI E PER FISSARE UN APPUNTAMENTO IN UFFICIO, CONTATTARCI AL NUMERO 02/97.48. 70.88 WWW. CONSULOVEST. IT

Proponiamo in vendita OTTIMO QUADRILOCALE ALL'ASTA!
Codice di riferimento: A4989

Proponiamo in vendita OTTIMO QUADRILOCALE ALL'ASTA, sito al piano settimo di uno stabile multipiano, realizzato antecedentemente al 1967.
L'immobile si trova in zona ben servita, a breve distanza dalla MM fermata SAN LEONARDO.
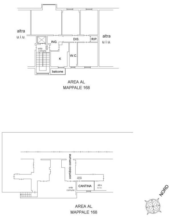
L'appartamento è composto da ingresso con corridoio, soggiorno, cucina, tre camere da letto, bagno, ripostiglio e due balconi, per una superficie totale di 104 mq.
Completa la soluzione vano cantina di pertinenza.
IMMOBILE LIBERO.

L’asta è TELEMATICA e vi seguiremo in tutta la procedura.

Trattandosi di un immobile all'asta, IL PREZZO SI RIFERISCE ALL'OFFERTA MINIMA e potrà subire notevoli rialzi!
Vero affare!

No agenzie, no intermediari, no collaborazioni.

Per la partecipazione in asta sara' necessario possedere il 10% di cauzione

Inoltre presso i nostri uffici abbiamo tante soluzioni con caratteristiche simili all'immobile di questo annuncio a prezzi vantaggiosi
Risparmia acquistando all'asta affidati agli esperti del settore, grazie alla nostra esperienza ventennale vi guideremo verso un acquisto sicuro e vantaggioso nel mondo delle aste

Compera all'asta a meno di un affitto.

IL NOSTRO SERVIZIO PUÒ ESSERE ATTIVATO PRESSO I NOSTRI UFFICI DI CORBETTA E MILANO, OPPURE TELEFONICAMENTE.
Wenn Sie mehr wissen möchten, können Sie mit Consulovest Milano. sprechen
Merkmale
Art
Wohnung | Gesamtes eigentum | Günstige immobilienklasse
Vertrag
Verkauf
Etage
7
Stockwerke im Gebäude
9
Aufzug
Ja
Fläche
104 m²
Zimmer
4
Schlafzimmer
3
Balkon
Ja
Terrasse
Nein
Heizung
Zentralheizung, heizkörper, methan betrieben
Klimaanlage
Installationsvoraussetzung
Katasterdaten
Blatt 1 - Paket 1 - Unterstellte 1
Andere Katasterdaten
Katasterabschnitt 1 - Abgenutzt 1 - Unterpartikel 1 - Unterstellte 1
Andere Merkmale
  • Doppelbelichtung
  • Fensterrahmen mit Doppelverglasung / Holz
  • Küche
  • Optische Faser
  • Elektrisches Tor
  • Gepanzerte Tür
  • Zentrales TV-System
Oberflächendetail

Wohnung

Etage
7
Fläche
104,0 m²
Koeffizient
100%
Flächenart
Hauptsächlich
Verkaufsfläche
104,0 m²
Energieeffizienz

Energieverbrauch

≥ 3,51 kWh/m² Jahr, NiedrigstenergiegebäudeF

Um teilzunehmen
Mindestgebot
€ 180.180,00
Kaution
€ 1
Hinterlegung Spesenkonto
€ 1
Minimaler Anstieg
€ 1
Chargendetails
Anzahl der Immobilien
1
Kategorie
IMMOBILE RESIDENZIALE
Verfahrensdaten
Aktualisiert am
20.02.2026
Verfahrensnummer
1
Ritual
1
Grundriss
Cattura
Entdecken Sie jeden Winkel des Anwesens
+22
Zusätzliche Optionen

Inserenten kontaktieren