Wohnung via Morroni, Marano Marchesato

€ 40.000
€ 50.000(-20,0%)
5+
300 m²
2
1 - 2
Balkon
Terrasse

Notiz

Anzeige aktualisiert am: 31.03.2026
Beschreibung

Referenz: APP-0068

Casa di paese in vendita a Marano Marchesato, situata in Via Morroni , vicino gli uffici postali. Con una superficie di circa 300 mq, questa abitazione da ristrutturare offre ampi spazi e potenzialità illimitate. Sviluppata su tre livelli, la casa presenta un piano terra con una scalinata che conduce al primo piano, dove si trova un accogliente soggiorno e una cucina, ripostiglio, un ampio disimpegno conduce a due stanze luminose e a un balcone che offre accesso a una corte condivisa. Proseguendo al secondo piano, si trovano tre ulteriori stanze, una delle quali è dotata di una terrazza chiusa, e due bagni. L'orientamento nord, sud, est e ovest garantisce una luce naturale che inonda gli ambienti, creando un'atmosfera calda e accogliente.
Questa proprietà rappresenta un'opportunità unica per personalizzare gli spazi secondo il proprio gusto, sia per uso residenziale che come investimento.
PREZZO € 40.000,00 trattabili
Non perdere l'occasione di trasformare questa casa in un luogo da sogno! Contattaci per maggiori informazioni e per organizzare una visita.
Wenn Sie mehr wissen möchten, können Sie mit Gaetano Rende. sprechen
Merkmale
Art
Wohnung | Gesamtes eigentum | Günstige immobilienklasse
Vertrag
Verkauf
Etage
Von 1 bis 2
Stockwerke im Gebäude
3
Fläche
300 m² | gewerblich 360 m²
Zimmer
5+
Schlafzimmer
3
Küche
Wohnküche
Badezimmer
2
Balkon
Ja
Terrasse
Ja
Heizung
Unabhängige heizung, heizkörper, methan betrieben
Klimaanlage
Eigenständig, warm
Andere Merkmale
  • Doppelbelichtung
  • Fensterrahmen mit Einfachverglasung / Holz
Oberflächendetail

Wohnung

Etage
1
Fläche
150,0 m²
Koeffizient
100%
Flächenart
Hauptsächlich
Verkaufsfläche
150,0 m²

Wohnung

Etage
2
Fläche
150,0 m²
Koeffizient
100%
Flächenart
Hauptsächlich
Verkaufsfläche
150,0 m²

Dachboden

Etage
3
Fläche
20,0 m²
Koeffizient
50%
Flächenart
zusätzlich
Verkaufsfläche
10,0 m²

Gemeinschaftliche Teile

Etage
Erdgeschoss
Fläche
100,0 m²
Koeffizient
50%
Flächenart
zusätzlich
Verkaufsfläche
50,0 m²
Preisinformationen
Preis
€ 40.000
Preis pro m²
111 €/m²
Energieeffizienz
  • Zustand

    Renovierung notwendig
  • Heizung

    Unabhängige heizung, heizkörper, methan betrieben
  • Klimatisierung

    Eigenständig, warm
  • Energieausweis

    Auf Zertifizierung wartend
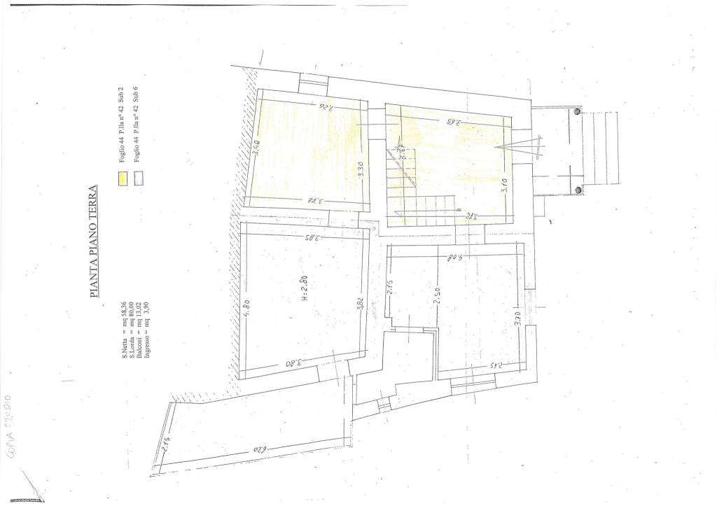
Grundriss
Planimetrie e mappa 2
Planimetrie e mappa 4
Planimetrie e mappa 3
Entdecken Sie jeden Winkel des Anwesens
+23
Zusätzliche Optionen

Inserenten kontaktieren

Oder