Gebäude zur Verkauf

€ 120.000
5+
748 m²
3+
UG, 1

Notiz

Anzeige aktualisiert am: 10.12.2025
Beschreibung

Referenz: 44433

Nel cuore del centro storico, proponiamo in vendita appartamenti di varie metrature situati all’interno di un elegante palazzo d’epoca, recentemente sottoposto a un completo intervento di restauro strutturale.

L’edificio, dotato di ascensore, si distingue per il doppio affaccio panoramico sia sul Colle Pizzuto che su Piazza Emilio D’Amico, offrendo scorci suggestivi e una luminosità naturale in ogni ambiente.

Gli appartamenti vengono venduti allo stato grezzo, con nuovi infissi termici già installati, offrendo così la possibilità di personalizzare le finiture interne secondo il proprio gusto e stile, per creare spazi abitativi unici e su misura.

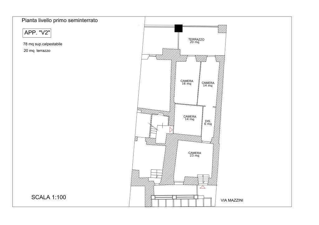
Appartamento V2
Appartamento situato al piano primo seminterrato, con una superficie interna di 88 mq commerciali e un terrazzo di 20 mq.
L’unità è composta da quattro vani principali e terrazzo esterno.

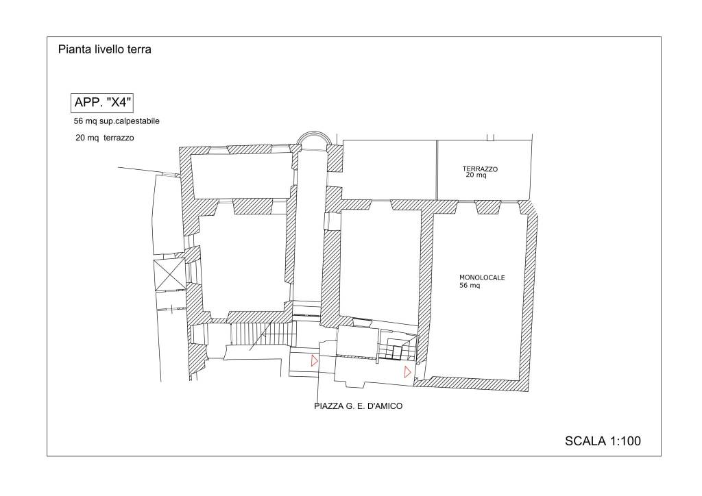
Appartamento X4
Monolocale di 70 mq commerciali, situato al piano terra, con terrazzo 20 mq.

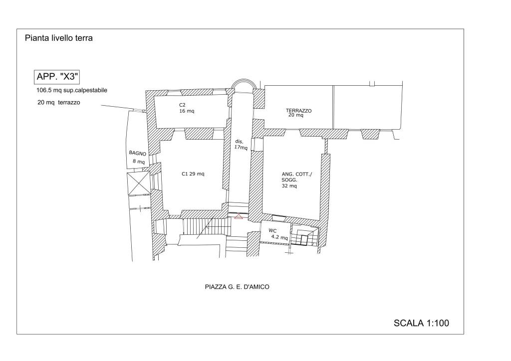
Appartamento X3
Appartamento di 125 mq commerciali al piano terra, composto da ingresso, salone con angolo cottura, camera matrimoniale, cameretta, due bagni e terrazzo di 20 mq. Ottima distribuzione degli spazi e grande luminosità.

Appartamento Z1
Appartamento su due livelli di circa 170 mq commerciali, situato al secondo e terzo piano, con affaccio diretto su Piazza San Paolo.
Composta da ampio soggiorno, tre camere, due bagni, cabina armadio e terrazzo loggiato.
Una residenza unica nel suo genere, caratterizzata da charme e panorami suggestivi.

Appartamento Z2
Appartamento su due livelli di 160 mq commerciali al secondo e terzo piano, composto da disimpegno, soggiorno, cucina abitabile, due camere da letto, bagno, ripostiglio e cabina armadio.
Ambienti spaziosi e funzionali, perfetti per famiglie.

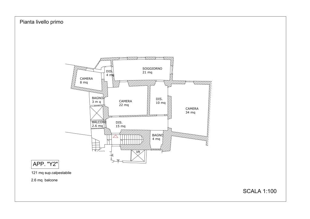
Appartamento Y2
Appartamento al primo piano di 135 mq commerciali, composto da disimpegno, soggiorno, cucina, tre camere da letto, due bagni e balcone.
Ottima soluzione per chi desidera ampi spazi e comfort abitativo.

Un’occasione unica per vivere o investire nel cuore della città, in un contesto che coniuga storia, eleganza e modernità.

PREZZI A PARTIRE DA 120.000,00

L’agenzia Sportello Immobiliare Genazzano opera nel settore immobiliare con esperienza ventennale, a Genazzano e nei paesi limitrofi. Segue il cliente dalla scelta della casa fino all’atto notarile, accompagnandolo e consigliandolo per l’intero iter. I clienti potranno beneficiare di alta professionalità e di una costante presenza pubblicitaria a livello regionale.
Wenn Sie mehr wissen möchten, können Sie mit Mancini Pasquale. sprechen
Merkmale
Vertrag
Verkauf | Zinsgrundstück
Art
Gebäude | Herrschaftliche immobilienklasse
Fläche
748 m²
Zimmer
5+ zimmer, 3+ badezimmer
Etage
4 Stockwerke: von Untergeschoss bis Erdgeschoss, von 1° bis 2°, Mit behinderten gerechtem Zugang
Stockwerke im Gebäude
4
Verfügbarkeit
Frei
Andere Merkmale
  • 3 balkone
  • Fensterrahmen mit Doppelverglasung / Holz
  • Straßenseite
Oberflächendetail

Wohnung

Etage
Untergeschoss
Fläche
88,0 m²
Koeffizient
100%
Flächenart
Hauptsächlich
Verkaufsfläche
88,0 m²

Wohnung

Etage
Erdgeschoss
Fläche
70,0 m²
Koeffizient
100%
Flächenart
Hauptsächlich
Verkaufsfläche
70,0 m²

Wohnung

Etage
Erdgeschoss
Fläche
125,0 m²
Koeffizient
100%
Flächenart
Hauptsächlich
Verkaufsfläche
125,0 m²

Wohnung

Etage
1
Fläche
135,0 m²
Koeffizient
100%
Flächenart
Hauptsächlich
Verkaufsfläche
135,0 m²

Wohnung

Etage
2
Fläche
160,0 m²
Koeffizient
100%
Flächenart
Hauptsächlich
Verkaufsfläche
160,0 m²

Wohnung

Etage
2
Fläche
170,0 m²
Koeffizient
100%
Flächenart
Hauptsächlich
Verkaufsfläche
170,0 m²
Preisinformationen
Preis
€ 120.000
Preis pro m²
160 €/m²
Energieeffizienz

Energieverbrauch

≥ 175 kWh/m² JahrG

Grundriss
V2 Seminterrato 1
X3 Piano terra terrazzo 1
X4 Monocamera 1
Y2 Appartamento 1 piano 1
Z1 Mansarda con balcone 1
Z2 Mansarda 1
Entdecken Sie jeden Winkel des Anwesens
+58
Zusätzliche Optionen

Inserenten kontaktieren

Oder