Penthouse Stradello Depero Fortunato 3, San Lazzaro, Parma

€ 355.000
3
123 m²
2
4 - 5
Ja
Balkon
Terrasse
Keller

Notiz

Anzeige aktualisiert am: 20.03.2026
Beschreibung

Referenz: Depero.4

Sei alla ricerca di un attico in zona sud? Lo vorresti libero da subito? Allora dai un'occhiata a questo attico già libero con un terrazzo di 25 metri quadrati, ideale per vivere momenti conviviali con amici e familiari.
L'appartamento ottimamente distribuito è formato da:

- ingresso su ampio living di circa 45 metri quadrati, attualmente distribuito come un unico open space, ma può essere anche diviso, bagno con doccia, un piccolo terrazzo ed un grande terrazzo di circa 25 mq, esposto ad Ovest con affaccio libero;
- attraverso la scala interna si accede alla zona notte dove troviamo 2 camere matrimoniali mansardate grandi, una da 18 mq ed un'altra da 16 mq, ed un bagno.

Completano la soluzione una cantina ed un garage al piano seminterrato.

L'appartamento è l'ideale per chi vuole vivere in un quartiere in continuo sviluppo, circondato dal verde e con i principali servizi sotto casa.

PER INFORMAZIONI E VISITE: Carlo 327 2826189 é preferibile il contatto su whatsapp, in modo da essere ricontattati il prima possibile!!!! Lasciatemi un messaggio con il codice dell'immobile, in questo caso "DEPERO.4", i vostri dati e sarete ricontattati entro poche ore.
Wenn Sie mehr wissen möchten, können Sie mit Carlo Rossi. sprechen
Merkmale
Art
Penthouse | Gesamtes eigentum | Durchschnittliche immobilienklasse
Vertrag
Verkauf
Etage
Von 4 bis 5
Stockwerke im Gebäude
5
Aufzug
Ja
Fläche
123 m² | gewerblich 131,3 m²
Zimmer
3
Schlafzimmer
2
Küche
Offene Küche
Badezimmer
2
Möbliert
Nein
Balkon
Ja
Terrasse
Ja
Garage, parkplätze (auto)
1 in lager/garage
Heizung
Unabhängige heizung, heizkörper, gasbetrieben
Klimaanlage
Installationsvoraussetzung
Andere Merkmale
  • Fensterrahmen mit Doppelverglasung / PVC
  • Optische Faser
  • Straßenseite
  • Türöffner mit Videoüberwachung
  • Elektrisches Tor
  • Gepanzerte Tür
  • Zentrales TV-System
Oberflächendetail

Wohnung

Etage
4
Fläche
54,0 m²
Koeffizient
100%
Flächenart
Hauptsächlich
Verkaufsfläche
54,0 m²

Terrasse

Etage
4
Fläche
33,0 m²
Koeffizient
50%
Flächenart
Hauptsächlich
Verkaufsfläche
16,5 m²

Dachgeschoss

Etage
5
Fläche
66,0 m²
Koeffizient
80%
Flächenart
Hauptsächlich
Verkaufsfläche
52,8 m²

Garage

Etage
Untergeschoss
Fläche
16,0 m²
Koeffizient
50%
Flächenart
zusätzlich
Verkaufsfläche
8,0 m²
Preisinformationen
Preis
€ 355.000
Preis pro m²
2.704 €/m²
Kostendetails
Eigentumswohnungskosten
€ 92/Monat
Energieeffizienz

Energieverbrauch

97.41 kWh/m² JahrD

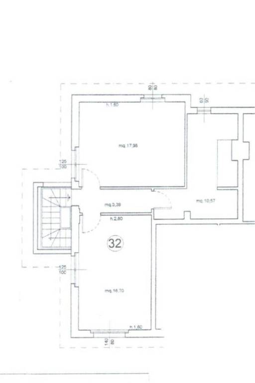
Grundriss
planimetria quotata via de pero 4 (1) 1
planimetria quotata via de pero 4 (1) 2
Virtuelle Tour
Entdecken Sie jeden Winkel des Anwesens
+54
Zusätzliche Optionen

Inserenten kontaktieren

Oder