map icon

Κατάστημα προς Ενοικίαση

Desio
€ 6.670/μήνα
1
550 m²
1
ΙΣ

Σημείωση

Τελευταία ενημέρωση: 19/12/2025
Περιγραφή

κωδικός: A 1265 - A Neg. 204 -A

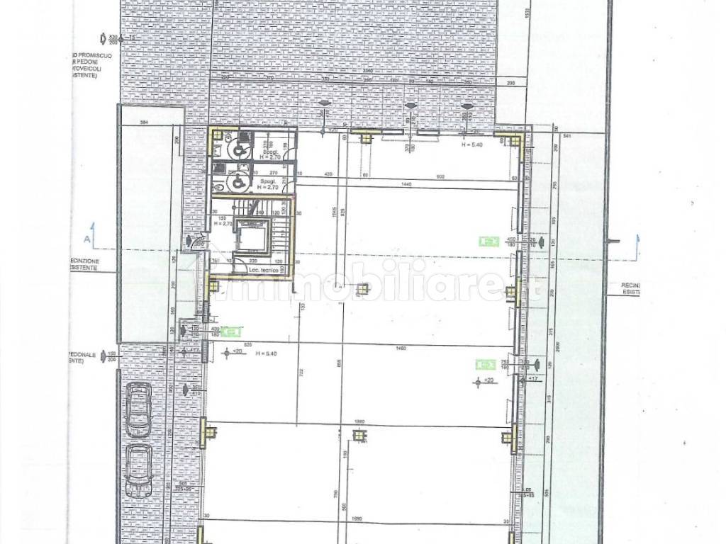
DESIO confini con Cesano Maderno, su strada di forte passaggio veicolare - con parcheggi pubblici adiacenti e parcheggi privati - proponiamo ESPOSIZIONE COMMERCIALE DI 550 MQ da ultimare - posto al piano terra - ambiente unico con bagno - h. 5,40 sotto trave - verrà consegnato con serramenti in alluminio doppi veri, pavimento in battura di cemento e predisposizione impianti - giardino privata mq 330 - il canone è soggetto a IVA - possibilità di locare anche il piano primo e/o un appartamento di MQ 100 al primo piano
Χαρακτηριστικά
Συμβόλαιο
Ενοικίαση
Τύπος
Κατάστημα
Εμβαδόν
550 m² | επαγγελματικό 880 m²
Δωμάτια
1 δωμάτιο, 1 μπάνιο, διπλή είσοδος
Όροφος
Ισόγειο, με πρόσβαση για άτομα με ειδικές ανάγκες
Σύνολο ορόφων
2
Ύψος οροφής
5,4 m
Διαθεσιμότητα
Διαθέσιμο
Άλλα χαρακτηριστικά
  • Γωνιακή θέση
Λεπτομέρεια επιφάνειας

Κατάστημα - Εμπορικός χώρος

Όροφος
Ισόγειο
Εμβαδόν
550,0 m²
Συντελεστής
100%
Τύπος επιφάνειας
Κύρια
Συνολική επιφάνεια
550,0 m²

Λοιπές κατηγορίες

Όροφος
Ισόγειο
Εμβαδόν
330,0 m²
Συντελεστής
100%
Τύπος επιφάνειας
Δευτερεύουσα
Συνολική επιφάνεια
330,0 m²
Πληροφορίες τιμής
Τιμή
€ 6.670/μήνα
Τιμή ανά m²
8 €/m²
Λεπτομέρειες κόστους
Κοινόχρηστα
Χωρίς κοινόχρηστα έξοδα
Εγγύηση
Δεν αναφέρεται
Ενεργειακή απόδοση
  • Έτος κατασκευής

    2024
  • Κατάσταση

    Νεόδμητο / Υπό κατασκευή
  • Ενεργειακή πιστοποίηση

    Χωρίς ταξινόμηση
Ανακαλύψτε κάθε γωνιά του ακινήτου
+8
Πρόσθετες επιλογές

Επικοινώνησε με τον αγγελιοδότη

Ή