Τριάρι via Terpandro 21, Axa, Ρώμη

€ 480.000
3
160 m²
3
ΙΣ
Όχι
Αποθήκη

Σημείωση

Τελευταία ενημέρωση: 30/03/2026
Περιγραφή

κωδικός: EK-127479792

DUPLEX ASIA — 160 MQ CON GIARDINO ESCLUSIVO | CLASSE ENERGETICA B | COMPLETAMENTE RISTRUTTURATO

Nel cuore dell’elegante quartiere residenziale dell’Axa, a pochi passi da Piazza Eschilo e da tutti i principali servizi, nasce Duplex Asia, un esclusivo appartamento su due livelli di circa 160 mq commerciali, completamente ristrutturato e inserito in un raffinato complesso privato con parco e piscina condominiale.

Una soluzione contemporanea progettata per offrire comfort, funzionalità e qualità abitativa, immersa in un contesto verde e riservato.

Il piano principale accoglie con una luminosa zona living, impreziosita dalla cucina a vista e da un balcone con affaccio sul parco condominiale, uno scorcio di verde che accompagna la quotidianità e crea un’atmosfera rilassante e accogliente.
Lo spazio, ideale per la convivialità, è completato da un elegante bagno di servizio e da una pratica zona guardaroba, perfetta per mantenere ordine e armonia negli ambienti.

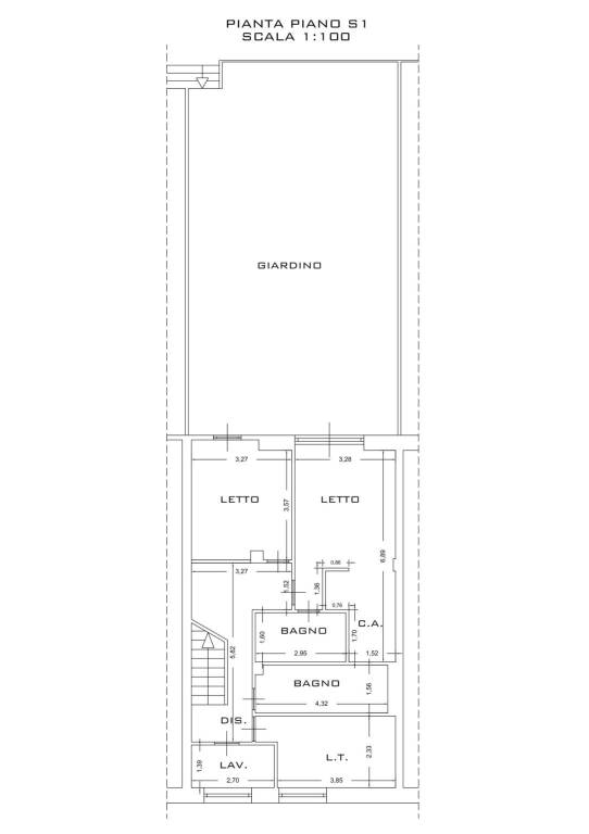
Il livello inferiore, in diretta relazione con il giardino di proprietà, gode di ottima luminosità e ospita la zona notte composta da due camere da letto, entrambe con accesso diretto al giardino tramite ampie porte finestre.

La suite padronale è arricchita da bagno en suite e comoda cabina armadio, mentre un secondo bagno e una funzionale zona lavanderia completano il piano, garantendo praticità e comfort per tutta la famiglia.

Frutto di un frazionamento intelligente di un’unità di metratura ben più ampia, l’immobile è stato progettato per offrire una distribuzione degli spazi moderna e funzionale, pensata per assicurare massima vivibilità in ogni ambiente.

Grazie alla classe energetica B, la proprietà garantisce un’elevata efficienza energetica con riduzione dei consumi e dei costi di gestione.
Un ulteriore valore aggiunto è rappresentato dalla possibilità di beneficiare delle detrazioni fiscali previste per gli interventi di ristrutturazione.

L’immobile sarà rifinito con parquet in tutti gli ambienti e dotato di impiantistica di ultima generazione: pompa di calore caldo/freddo, sistema di deumidificazione e sanificazione dell’aria, per assicurare benessere abitativo ed efficienza energetica durante tutto l’anno.

Consegna prevista entro il 15 settembre 2026.

Una casa pensata per chi desidera spazi versatili, tecnologia e il privilegio di un giardino privato, senza rinunciare all’eleganza di un contesto signorile.

Per ulteriori approfondimenti, dettagli sulle detrazioni fiscali e per visionare il capitolato dei lavori, è possibile prenotare un appuntamento dedicato presso il nostro studio.

Le informazioni, le immagini e le planimetrie sono da ritenersi indicative e non costituiscono elementi contrattuali.
Χαρακτηριστικά
Τύπος
Διαμέρισμα | Ολική ιδιοκτησία | Ακίνητο υψηλής τάξης
Συμβόλαιο
Πώληση
Όροφος
Ισόγειο
Σύνολο ορόφων
2
Ανελκυστήρας
Όχι
Εμβαδόν
160 m² | επαγγελματικό 168 m²
Δωμάτια
3
Υπνοδωμάτια
2
Κουζίνα
Κουζινάκι
Μπάνια
3
Επιπλωμένο
Όχι
Μπαλκόνι
Όχι
Βεράντα
Όχι
Θέρμανση
Αυτόνομη
Κλιματισμός
Αυτόνομη
Άλλα χαρακτηριστικά
  • Διπλός υαλοπίνακας/ Κουφώματα αλουμινίου
  • Οπτική ίνα
  • Πόρτα ασφαλείας
  • Συναγερμός
  • Τζάκι
  • Αυτόνομη εγκατάσταση για τηλεόραση
Λεπτομέρεια επιφάνειας

Κατοικία

Όροφος
Ισόγειο
Εμβαδόν
160,0 m²
Συντελεστής
100%
Τύπος επιφάνειας
Κύρια
Συνολική επιφάνεια
160,0 m²

Κήπος

Όροφος
Ισόγειο
Εμβαδόν
80,0 m²
Συντελεστής
10%
Τύπος επιφάνειας
Δευτερεύουσα
Συνολική επιφάνεια
8,0 m²
Πληροφορίες τιμής
Τιμή
€ 480.000
Τιμή ανά m²
2.857 €/m²
Ενεργειακή απόδοση

Κατανάλωση ενέργειας

≥ 175 kWh/m² έτοςΒ

Σχέδιο ακινήτου
PIANO S1 MOBILIATO 1
PIANO S1 QUOTATO 1
PIANO T MOBILIATO 1
PIANO T QUOTATO 1
Ανακαλύψτε κάθε γωνιά του ακινήτου
+24
Πρόσθετες επιλογές

Επικοινώνησε με τον αγγελιοδότη

Ή