Casa unifamiliar vicolo Del Conte, 70, Casetta Mattei - Corviale, Roma

€ 860.000
3
234 m²
3
Lujo
No
Terraza

Nota

Anuncio actualizado el 27/03/2026
Descripción

referencia: Cod. rif VILLAT

VILLE INDIPENDENTI CHIAVI IN MANO. GABETTI ROMA BRAVETTA è lieta di proporre in vendita, nel cuore verde della Valle dei Casali, a breve distanza dal centro di Roma, ville esclusive la cui consegna è prevista per Luglio 2026. Il progetto si distingue per l'architettura moderna, le rifiniture di altissimo pregio e la massima efficienza energetica A4.
Le Tipologie Abitative
- Il complesso offre due soluzioni ( Villa T e Villa Q )
entrambe distribuite su tre livelli con giardino privato.
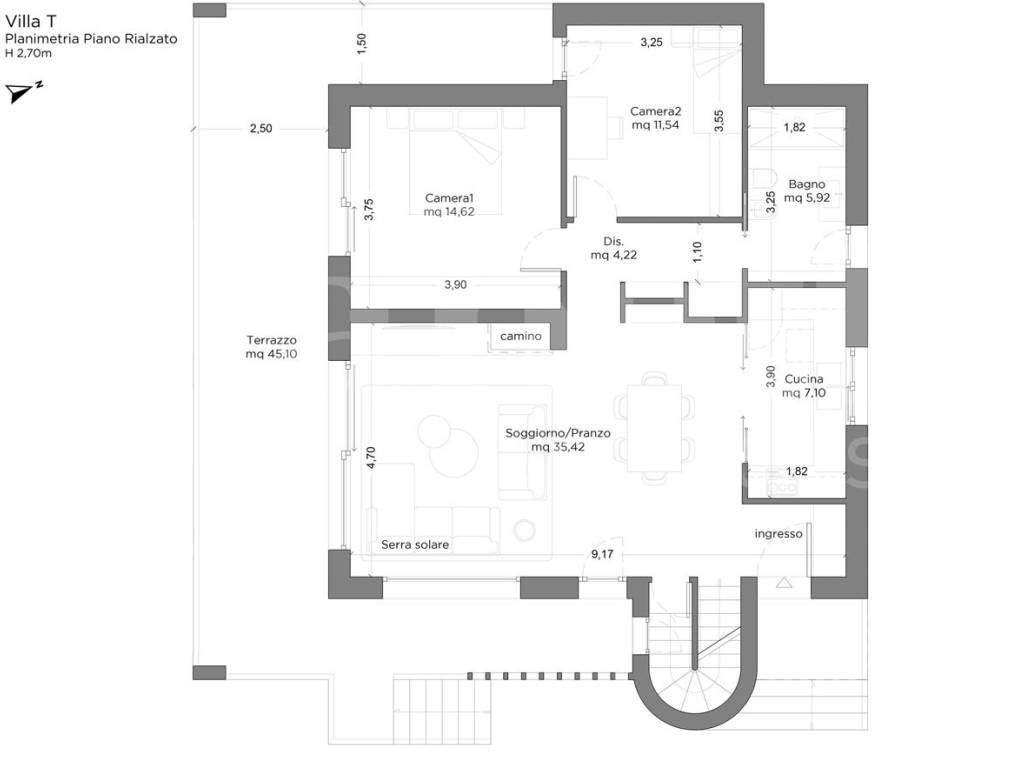
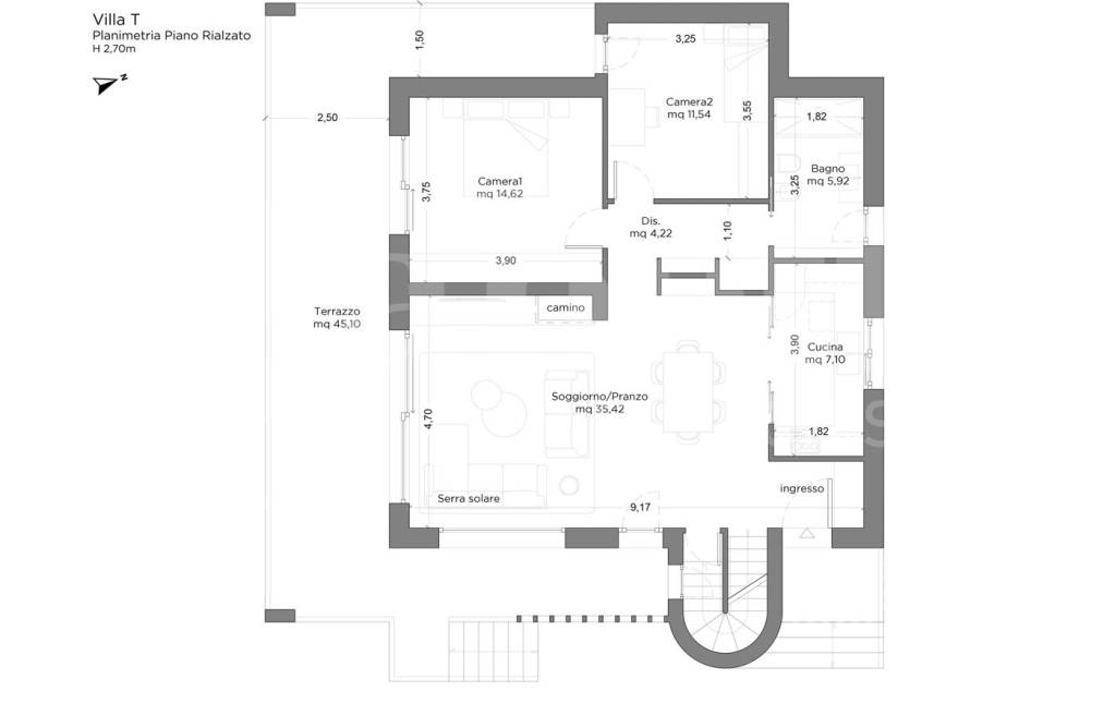
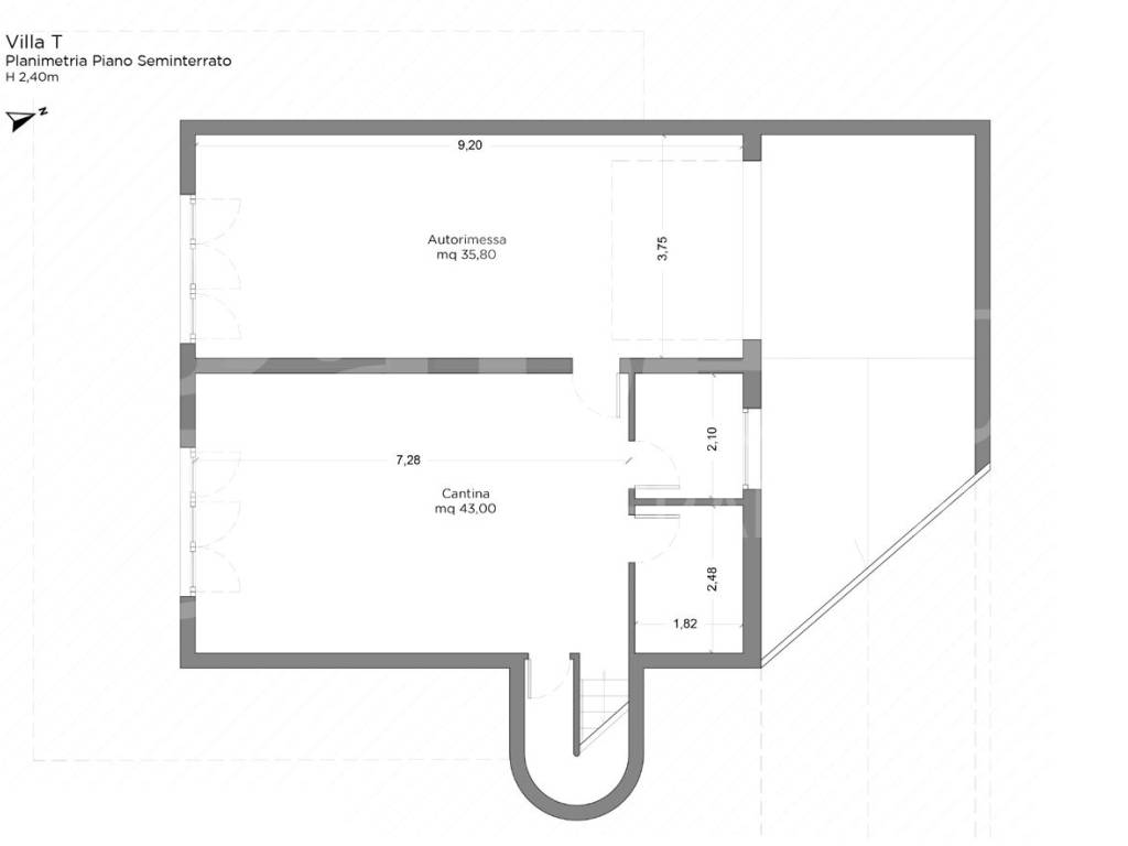
-VILLA T (235 mq - da € 860.000):
-Piano Rialzato: Area living con camino, e vetrate panoramiche, cucina a vista, terrazza perimetrale su tre lati, zona notte con camera matrimoniale, camera singola e grande bagno finestrato.
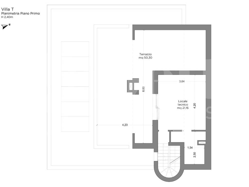
-Piano Primo: Suite con bagno privato, ampia terrazza (40 mq) e tetto giardino.
-Piano Seminterrato: Sala hobby, bagno finestrato, locale tecnico e garage doppio con colonnina di ricarica.
-Esterni: Giardino privato di circa 400 mq.
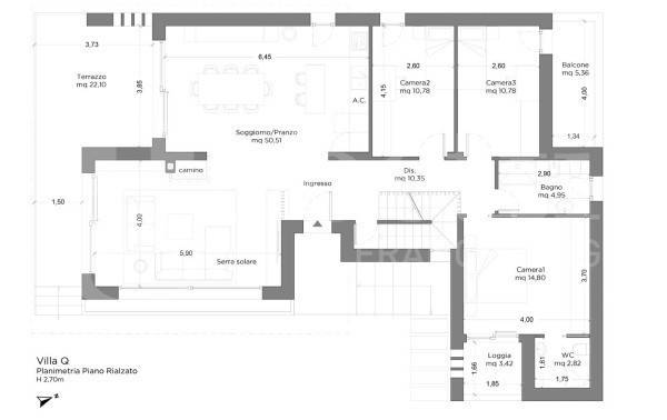
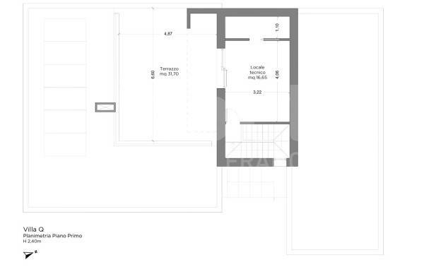
-VILLA Q (317 mq - da € 1.060.000):
-Piano Rialzato: Doppia zona giorno, cucina a vista, accesso alla terrazza, zona notte con camera padronale e bagno en suite, due ampie camere singole e secondo bagno finestrato.
-Piano Primo: Camera con bagno, terrazza (30 mq) e solarium/tetto giardino.
-Piano Seminterrato: Grande sala hobby, lavanderia, bagno e garage doppio con colonnina di ricarica
-Esterni: Giardino privato di circa 600 mq.
-Innovazione Tecnica e Sostenibilità (Classe A4 nZEB)
-Le ville sono progettate come edifici a energia quasi zero, garantendo costi di gestione minimi:
-Energia: Impianto fotovoltaico da 6 KW con batterie di accumulo da 12 KW.
-Comfort Termico: Riscaldamento/raffrescamento ad aria e Ventilazione Meccanica Controllata (VMC) integrata nei controtelai termoisolanti.
-Domotica: Gestione intelligente dell'abitazione ("Smart Home").
-Risorse: Sistema di recupero delle acque meteoriche per l'irrigazione.
-Finiture di Pregio e Materiali
-Infissi: Legno di rovere con doppi vetri e serrande ALPAC motorizzate in alluminio coibentato.
-Rivestimenti: Ceramiche di alta gamma (Marazzi, Caesar, Imola) e rubinetterie Hansgrohe.
-Sicurezza: Porte blindate Dierre.
-Il complesso dispone di un'area di circa 1.500 mq che include:
-Orti Urbani Esclusivi: Ad ogni villa sarà assegnato un orto di circa 80 mq ad uso privato, recintato e dotato di casotto in legno per gli attrezzi e punto acqua.
-Area Giochi: Spazio dedicato ai più piccoli.
-Posti auto: Possibilità di acquisto separato di posti scoperti.
-Posizione e Vantaggi Fiscali
-Location: Zona strategica, a pochi chilometri dal centro città e dalle principali arterie di collegamento al GRA, vicina a servizi essenziali, (scuole, università, farmacie, centri commerciali ) e ben collegata al centro tramite linee autobus. (Vedi foto in galleria per i collegamenti delle linee autobus)
-Detrazioni: L’acquisto dell’immobile beneficia delle detrazioni fiscali previste dall'Art. 16-bis del DPR 917/86 e Legge n.234 del 30/12/2021. L'acquirente potrà detrarre il 50% delle spese sostenute (fino al 31/12/2026) su un massimale di € 96.000,00, recuperando quindi € 48.000,00 in 10 quote annuali di pari importo. Per maggiori informazioni e per prenotare un appuntamento sul posto: Tel: 06.27.53.829 Cell: 392.08.76.185 Progetto completo e capitolato: www.simotti.org/lavori/vicolo-del-conte-70/?La presente descrizione ha valore puramente indicativo e non costituisce elemento contrattuale.
Si deseas más información puedes hablar con Francesco Fachechi.

Suele responder en 12 horas

Características
Tipología
Casa unifamiliar | Propiedad completa | Tipo de inmueble señorial
Contrato
Venta
Planta
Entresuelo
Plantas del edificio
3
Ascensor
No
Superficie
234 m² | comercial 294 m²
Habitaciones
3
Dormitorios
3
Cocina
Cocina abierta
Baños
3
Amueblado
No
Terraza
Garaje, plazas de aparcamiento
1 en garaje privado, 2 en aparcamiento/garaje público
Calefacción
Individual, de energía solar
Aire acondicionado
Individual, frío/calor
Otras características
  • Bodega
  • Buhardilla
  • Carpintería exterior de doble vidrio/madera
  • Chimenea
  • Fibra óptica
  • Jardín privado y comunitario
  • Puerta blindada
  • Sistema de alarma
Detalle superficie

Vivienda

Planta
Entresuelo
Superficie
234,0 m²
Coeficiente
100%
Tipo de superficie
Principal
Superficie construida
234,0 m²

Jardín

Planta
Planta baja
Superficie
400,0 m²
Coeficiente
10%
Tipo de superficie
Anexos
Superficie construida
40,0 m²

Garaje

Planta
Planta baja
Superficie
40,0 m²
Coeficiente
50%
Tipo de superficie
Anexos
Superficie construida
20,0 m²
Información del precio
Precio
€ 860.000
Precio del m²
2.925 €/m²
Desglose de los costes
Gastos de comunidad
Ningún gasto de comunidad
Eficiencia energética

Consumo de energia

3.8 kWh/m² año, edificio de consumo de energía casi nuloA4

Plano
T PT.jpg
T P1S1.jpg
T PT 50 scala.jpg
T50 P1.jpg
T50 S1.jpg
36.jpg
37.jpg
39.jpg
44.jpg
45.jpg
Descubre otros ángulos del inmueble
+110
Opciones adicionales

Contactar con el anunciante

O