Piso en subasta via Quincinetto 1, Turin

desde € 19.500,00
3
12/05/2026
77 m²
2
No
Balcón
Trastero

Nota

Anuncio actualizado el 11/03/2026
Descripción

This description has been translated automatically by Google Translate and may not be accurate

referencia: EK-127391187

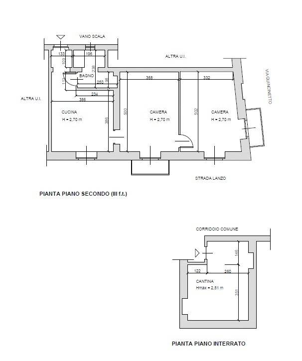
Ubicado en Turín, en la esquina de Via Quincinetto 1 y Strada Lanzo, ofrecemos un apartamento en la segunda planta de un edificio histórico sin ascensor. El condominio es tranquilo y está bien integrado en la zona urbana consolidada, con un patio compartido a disposición de los residentes. El apartamento, de aproximadamente 77 metros cuadrados, presenta una distribución funcional. Interiormente, consta de tres estancias comunicadas: un amplio dormitorio principal, un segundo dormitorio, una cocina-comedor y un baño. La doble orientación en esquina garantiza una excelente iluminación natural en todas las estancias principales. Completa la propiedad una bodega ubicada en el sótano. El sistema de calefacción es independiente, con una caldera de gas mural en la cocina y radiadores de columna, lo que garantiza la gestión independiente del consumo. Una parte de la galería también se destinará exclusivamente a usos domésticos. La propiedad se encuentra en su estado original y requiere modernización y renovación, ofreciendo un gran potencial para personalizar los espacios interiores. Es una solución ideal tanto como primera vivienda para parejas jóvenes como como inversión, dada su proximidad a los principales servicios y conexiones de transporte de la zona. Para aquellos que deseen explorar cada aspecto con mayor detalle, estamos disponibles para brindar toda la información necesaria y guiarlo a través de todo el proceso con transparencia y disponibilidad.
Características
Tipología
Piso | Propiedad completa | Tipo de inmueble económico
Contrato
Venta
Planta
2
Plantas del edificio
3
Ascensor
No
Superficie
77 m²
Habitaciones
3
Dormitorios
2
Balcón
Terraza
No
Calefacción
Individual, por radiadores, de gas
Otras características
  • Carpintería exterior de vidrio/madera
  • Cocina
  • Fibra óptica
  • Interior y exterior
  • Puerta blindada
  • Instalación tv individual
Detalle superficie

Vivienda

Planta
2
Superficie
77,0 m²
Coeficiente
100%
Tipo de superficie
Principal
Superficie construida
77,0 m²
Eficiencia energética
  • Estado

    Bueno / Habitable
  • Calefacción

    Individual, por radiadores, de gas
Detalle ventas
Tipo venta
Senza incanto
Fecha venta
12/05/2026, 9:30
Estado
Participativa
Para participar
Oferta mínima
€ 19.500,00
Fianza
€ 1.950
Aumento mínimo
€ 1.000
Aumento mínimo en caso de licitación
€ 1.000
Detalles lote
Número de lote
UNICO
Número de inmuebles
1
Categoría
IMMOBILE RESIDENZIALE
Datos de procedimiento
Actualizado el
11/03/2026
Registro
Ejecuciones civiles inmobiliarias
Procedimiento
Esecuzione Immobiliare
Procedimiento
Espropriazione Immobiliare (cartabia)
Plano
PLANIMETRIA
Descubre otros ángulos del inmueble
+7
Opciones adicionales

Contactar con el anunciante