Maison mitoyenne via Gaetano Donizetti, Centro, Costabissara

Prix sur demande
5+
224 m²
3
Non
Partiellement meublé

Remarque

Annonce mise à jour le 12/02/2026
Description

référence: 8309

RECENTISSIMA VILLA IN CLASSE ENERGETICA "A4" CON GIARDINO E GARAGE DOPPIO - Rif. 8309
In CENTRO a COSTABISSARA, in posizione molto tranquilla e silenziosa, proponiamo elegante villina inserita in contesto di quattro unità confinanti tra loro solo con il garage.
In Classe energetica A4, l'abitazione offre dotazioni e finiture di alto livello:
- Tapparelle motorizzate metalliche
- Pareti esterne con blocchi "Ytong Sisma Clima"
- Impianto di videocitofono con collegamento Wi-fi
- Pannelli fotovoltaici con 3,1 Kwp
- Presa di ricarica auto elettriche
- Impianto di aspirazione centralizzato
- Impianto di ventilazione meccanica
- Impianto di condizionamento
- Riscaldamento a pompa di calore con sistema a pavimento.
- Serramenti bianchi in pvc antieffrazione.
- pavimenti in piastrelle zona giorno sono in gres di dimensione 120x60 cm, zona notte in legno come la scala interna che con parapetto in vetro, risulta molto elegante.
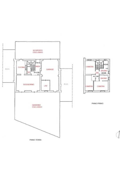
La casa, costruita nel 2022, è distribuita su 2 livelli fuori terra:
al PIANO TERRA ingresso su ampia e luminosa sala, cucina abitabile, comoda stanza lavanderia finestrata, bagno ospiti e autorimessa di 43 mq, ideale per due macchine, più spazio cantina e, sul retro, un bel giardino esclusivo e ricco di privacy, completo di funzionale pergola dotata di tenda motorizzata.
Davanti alla casa c'è uno spazio esclusivo per poter parcheggiare due auto.
Il PIANO PRIMO presenta tre buone camere da letto, di cui una con bagno esclusivo, ed un ulteriore ampio servizio dotato sia di box doccia che di vasca.
E' una soluzione che combina l'eleganza con il miglior comfort abitativo, il massimo risparmio energetico e spazi ampi e ben vivibili.
Vi aspettiamo in ufficio per illustrarvi al meglio questa soluzione!
AGENZIA VICENZA Sede di Marchetti Andrea
via Legione Antonini, 146 Vicenza - 0444/963900
www.agenziavicenza.it - marchetti@agenziavicenza.it
Aderente alla Borsa Immobiliare della C.C.I.A.A. di Vicenza
Si vous voulez en savoir plus, vous pouvez parler à Francesco Marchetti.
Caractéristiques
Typologie
Maison mitoyenne | Pleine propriété | Classe propriété haut de gamme
Transaction
Vente
Étage
Rez-de-chaussée
Étages du bâtiment
1
Ascenseur
Non
Superficie
224 m²
Chambres/pièces
5+
Chambres
3
Cuisine
Cuisine/salle-à-manger
Bains/douches
3
Meublé
Partiellement meublé
Balcon
Non
Terrasse
Non
Box, places stationnement
2 dans garage/box, 2 place(s) de parking
Chauffage
Individuel, au sol, alimenté par pompe à chaleur
Climatisation
Autonome, froid/chaud
Autres caractéristiques
  • Armoire murale
  • Cadres extérieurs triple vitrage / PVC
  • Double exposition
  • Fibre optique
  • Porte blindée
  • Portail électrique
  • Système TV simple
  • Vidéophone
Détail de la surface

Habitation

Étage
Rez-de-chaussée
Superficie
172,0 m²
Coefficient
100%
Type de superficie
Habitable
Sup. commercial
172,0 m²

Box ou garage

Étage
Rez-de-chaussée
Superficie
43,0 m²
Coefficient
66.6%
Type de superficie
Habitable
Sup. commercial
28,6 m²

Jardin

Étage
Rez-de-chaussée
Superficie
230,0 m²
Coefficient
10%
Type de superficie
Habitable
Sup. commercial
23,0 m²
Informations sur les prix
Prix
Prix sur demande
Détails des coûts
Charges de copropriété
Aucun frais de copropriété
Efficacité énergétique

Consommation d'énergie

29.75 kWh/m² annéeA4

Plan
8309_pln_0e1
8309_piano_0terra
8309_piano_1primo
Découvrez chaque recoin de la propriété
+24
Options additionnelles

Contacter l'annonceur