Maison jumelée / mitoyenne Sestiere Dorsoduro, 2435, Dorsoduro - San Barnaba, Venise

€ 1 390 000
5+
294 m²
3+
Luxe
Non
Cave

Remarque

Annonce mise à jour le 21/02/2026
Description

référence: 386169

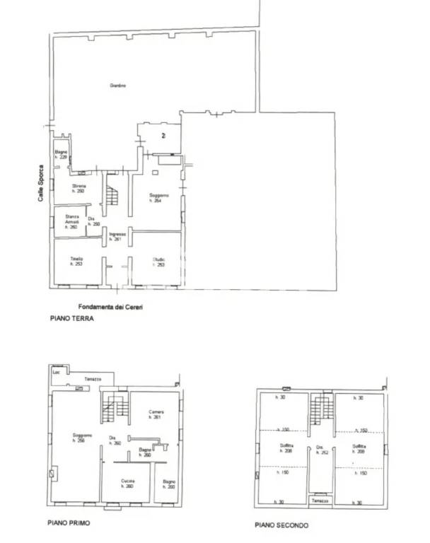
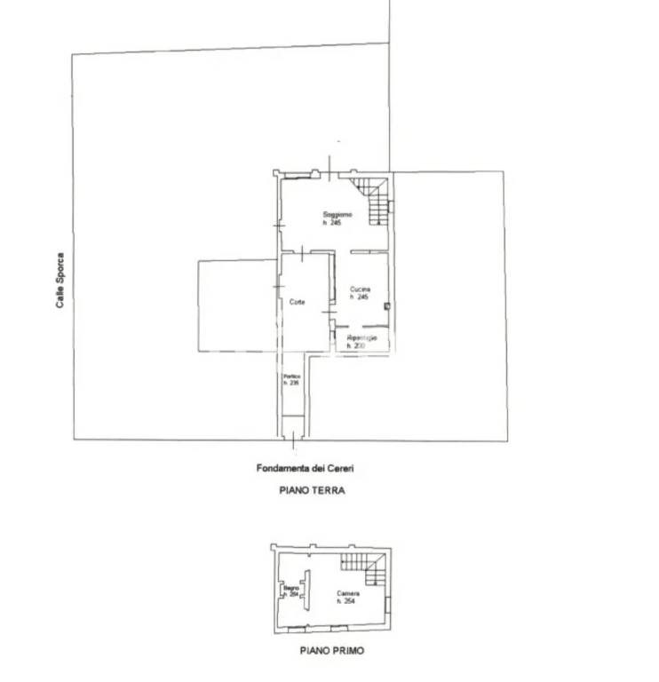
RIF. 386169 - Dati di contatto Agente: Massimo Collarini 0412531312 - Nel cuore del rinomato Sestiere di Dorsoduro, proponiamo in vendita casa indipendente sviluppata su più livelli, soluzione rara e di grande fascino nel contesto veneziano. L’immobile si compone al piano terra di piccolo magazzino, soggiorno, cucina, due camere, un bagno e ripostiglio; al primo piano troviamo soggiorno, cucina, una camera e 2 bagni; al piano superiore ampia mansarda ideale come studio, zona relax o ulteriori ambienti personalizzabili. Completa la proprietà ampia dependance su due livelli composta soggiorno, ampia cucina, una camera e bagno e ampio giardino privato di 120mq circa. La proprietà, grazie alla generosa distribuzione degli spazi, si presta sia come residenza principale sia come interessante opportunità di investimento,
Caractéristiques
Typologie
Maison jumelée / mitoyenne | Pleine propriété
Transaction
Vente
Étage
Rez-de-chaussée
Étages du bâtiment
2
Ascenseur
Non
Superficie
294 m² | commerciale 296 m²
Chambres/pièces
5+
Chambres
5
Cuisine
Cuisine/salle-à-manger
Bains/douches
3+
Balcon
Non
Terrasse
Non
Chauffage
Individuel, alimenté au méthane
Autres caractéristiques
  • Cadres extérieurs vitrage / bois
  • Double exposition
  • Mansarde
  • Système TV centralisé
Détail de la surface

Habitation

Étage
Rez-de-chaussée
Superficie
294,0 m²
Coefficient
100%
Type de superficie
Habitable
Sup. commercial
294,0 m²

Cave

Étage
Souterrain
Superficie
8,0 m²
Coefficient
25%
Type de superficie
Accessoires
Sup. commercial
2,0 m²
Informations sur les prix
Prix
€ 1 390 000
Prix au m²
4 696 €/m²
Détails des coûts
Charges de copropriété
Aucun frais de copropriété
Efficacité énergétique

Consommation d'énergie

372.55 kWh/m² annéeG

Plan
Tour virtuel
Découvrez chaque recoin de la propriété
+38
Options additionnelles

Contacter l'annonceur

Ou