Villa unifamiliare, nuova, 205 m², Colonnella

€ 200.000
5
205 m²
3
No
Terrazzo
Cantina

Nota

Annuncio aggiornato il 23/04/2024
Descrizione

riferimento: 0493

VILLA ALLO STATO GREZZO A COLONNELLA (TE)

VILLA ALLO STATO GREZZO A COLONNELLA (TE)

Questa villa in vendita a Colonnella è uno splendido edificio di circa 190 metri quadrati, situato al piano terra, offre ampi spazi per una vita confortevole e lussuosa.
Al momento la villa è allo stato grezzo, offrendo la possibilità di personalizzare gli spazi secondo i propri gusti e desideri.

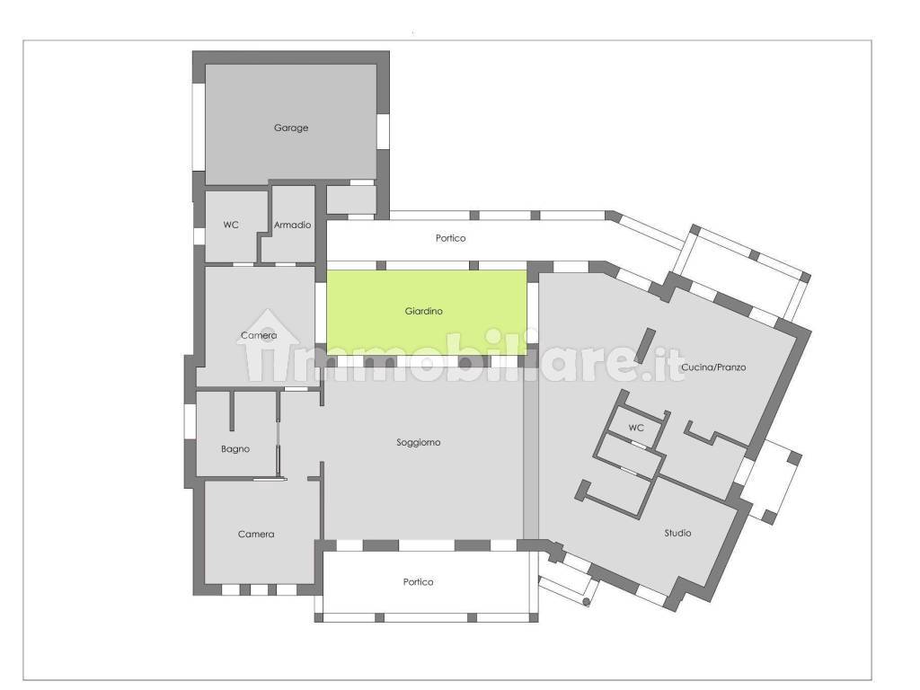
All'interno troviamo un grande soggiorno con alti soffitti e travi in legno bianco, una cucina abitabile con annessa zona pranzo, uno studio, 2 camere da letto, di cui la padronale con bagno privato e cabina armadio e 3 bagni, garantendo abbastanza spazio per ospitare amici e familiari.

La perfetta esposizione garantisce una luminosità naturale in ogni momento della giornata, creando un'atmosfera calda e accogliente in ogni stanza.La cucina abitabile è il cuore della casa, un luogo dove la famiglia può riunirsi e trascorrere momenti felici insieme.

I due porticati sono perfetti per godersi la vista panoramica e per cenare all'aperto durante le calde serate estive.La villa dispone anche di un "giardino d'inverno", ideale per rilassarsi e godersi il sole durante i mesi più caldi, ma anche durante il periodo invernale.

Il box auto è perfetto per parcheggiare due veicoli o per utilizzarlo come spazio di stoccaggio aggiuntivo.

La villa è realizzata su un unico piano, garantendo comodità e praticità per chiunque, dalla famiglia con bambini piccoli agli anziani.

La villa si trova a circa 3 km di distanza dal centro storico di Colonnella e dalla "Spiaggia d'Argento" di Alba Adriatica e dal lungomare di Villa Rosa. A 5 minuti di auto troviamo una zona commerciale necessaria per la quotidianità.

Non esitate a contattare l'agenzia immobiliare per ulteriori informazioni e per prenotare una visita per ammirare di persona questa splendida proprietà.

Per informazioni e visite contattare IMMOBILIARE SUCCITTI - Via G. Carducci n. 155 - Tortoreto (TE) - Tel. +39.0861.777443 - info@immobiliaresuccitti.it
Visitate il nostro sito internet www.immobiliaresuccitti.it
Se vuoi saperne di più, puoi parlare con Enzo Succitti.
Caratteristiche
Tipologia
Villa unifamiliare | Intera proprietà | Immobile di lusso
Contratto
Vendita
Piano
Piano terra
Piani edificio
1
Ascensore
No
Superficie
205 m²
Locali
5
Camere da letto
3
Cucina
Cucina abitabile
Bagni
3
Arredato
No
Balcone
No
Terrazzo
Box, posti auto
2 in box privato/box in garage, 1 in parcheggio/garage comune
Riscaldamento
Autonomo, a pavimento, alimentato a pompa di calore
Climatizzazione
Autonomo, freddo/caldo
Altre caratteristiche
  • Armadio a muro
  • Caminetto
  • Esposizione esterna
  • Fibra ottica
  • Impianto di allarme
  • Infissi esterni in doppio vetro / metallo
  • Porta blindata
  • Cancello elettrico
Dettaglio superficie

Abitazione

Piano
Piano terra
Superficie
190,0 m²
Coefficiente
100%
Tipo superficie
Principale
Sup. commerciale
190,0 m²

Box o garage

Piano
Piano terra
Superficie
30,0 m²
Coefficiente
50%
Tipo superficie
Principale
Sup. commerciale
15,0 m²
Informazioni sul prezzo
Prezzo
€ 200.000
Prezzo al m²
976 €/m²
New
Dettaglio dei costi
Spese condominio
Nessuna spesa condominiale
Efficienza energetica
  • Anno di costruzione

    2024
  • Stato

    Nuovo / In costruzione
  • Riscaldamento

    Autonomo, a pavimento, alimentato a pompa di calore
  • Climatizzatore

    Autonomo, freddo/caldo
Planimetria
Planimetria
Scopri ogni angolo dell'immobile
+13
Mutuo
%
Durata del mutuo

Rata da € 594 al mese

€ 60.000 (30%)

€ 140.000 (70%)

Vuoi sapere che mutuo puoi richiedere?

Opzioni aggiuntive

Contatta l'inserzionista

Oppure