Single family villa via Leonardo Da Vinci, Sant'Arpino

Price on application
4
350 m²
2
No
Balcony

Note

Listing updated on 01/21/2026
Description

reference: 61123532

SCOPRI LA TUA VILLA DEI SOGNI A SANT'ARPINO
Presentiamo una straordinaria opportunità di acquisto: una villa in corso di costruzione, unica nel suo genere.
Situata in una delle zone più richieste di Sant’Arpino a pochi passi da Frattamaggiore e Grumo Nevano, questa incantevole soluzione abitativa è perfetta per chi cerca privacy e vicinanza ai principali servizi.
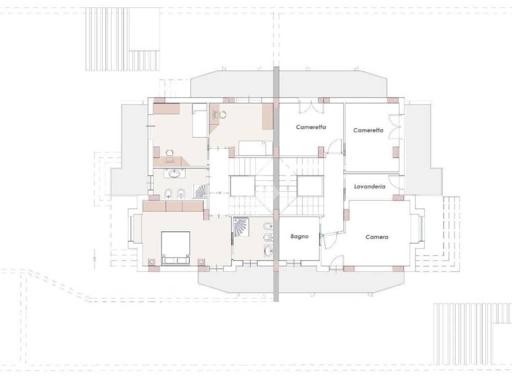
LIBERA SU TRE LATI, ha una superficie complessiva di 140 mq sviluppata su due livelli.
Il layout interno di progetto (modificabile dal richiedente) prevede:
-al piano terra salone living e cucina a vista con uscita nel giardino, bagno finestrato e uno studio accessibile anche da un secondo ingresso per la massima privacy;
-al piano primo la camera matrimoniale, due camerette, bagno finestrato, lavanderia e/o bagno in camera.
Completa la struttura un AMPIO GIARDINO PRIVATO dove è possibile realizzare una splendida piscina a sfioro già autorizzata in progetto.
Un comodo patio esterno per la rimessa degli autoveicoli fa da cornice ad una ricercata architettura moderna e razionale.
L’immobile sarà trasferito in corso di costruzione per permettere la massima personalizzazione degli ambienti e delle finiture da ultimare secondo i propri gusti estetici e le proprie esigenze abitative e rendere unica la villa dei propri sogni.
Fissa il tuo appuntamento; prima della visita potremmo - qualora tu ne avessi bisogno - offrirti una consulenza finanziaria del tutto gratuita in ufficio e senza alcun tipo di vincolo grazie al supporto dei colleghi.
If you want to know more, you can talk to Salvatore Prisco ..

Usually responds within 12 hours

Features
Type
Single family villa | Full ownership | Stately property class
Contract
Sale
Floor
Mezzanine floor
Building floors
2
Lift
No
Surface
350 m²
Rooms
4
Bedrooms
3
Kitchen
Kitchen diner
Bathrooms
2
Furnished
No
Balcony
Yes
Terrace
No
Garage, car parking
3 parking space
Other features
  • Video entryphone
Price information
Price
Price on application
Energy efficiency
  • Year of construction

    2026
  • Condition

    New / Under construction
  • Energy certification

    Exempt
Discover every corner of the property
+14
Additional options

Contact the advertiser