3-room flat via Isacco Artom 75, Colli Portuensi - Casaletto, Rome

€ 470,000
3
110 m²
2
1
Yes
Balcony
Terrace
Cellar

Note

Listing updated on 03/16/2026
Description

This description has been translated automatically by Google Translate and may not be accurate

reference: rom470

Rome: Colli Portuensi. Apartment with cellar.

Overlooking the Villa Flora park, near Via Portuense but on a private street with free parking, this first-floor apartment with elevator is located on the 1st floor. The house was completely renovated in 2017 and is currently in excellent condition and ready to move into.
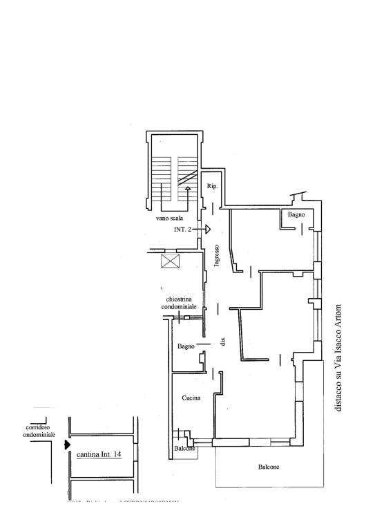
The apartment comprises an entrance hall, a living room with access to a large terrace, a convenient storage room, an eat-in kitchen, two bedrooms, and two bathrooms, one of which is ensuite. A useful cellar completes the property. Several features enhance the apartment's livability, including air conditioning, awnings on the terrace, grates on all windows, and independent heating.
Given its open, corner views, the apartment is also particularly bright.
Its location, just 5 minutes from Largo La Loggia, is ideal for those who want everything within easy reach, thanks to the numerous activities and services nearby.
It is therefore an excellent solution both for those seeking an apartment for immediate daily use and for those looking to invest in the city and generate income.
For all our solutions, visit our website www.mondosabinaimmobiiare.it
If you want to know more, you can talk to jacopo olivero.
Features
Type
Apartment | Full ownership | Stately property class
Contract
Sale
Floor
1
Building floors
4
Lift
Yes
Surface
110 m²
Rooms
3
Bedrooms
2
Kitchen
Kitchen diner
Bathrooms
2
Furnished
No
Balcony
Yes
Terrace
Yes
Heating
Independent, with radiators, powered by methane
Air conditioning
Independent, cold/hot
Other features
  • External exposure
  • Optic fiber
  • Security door
  • Window frames in double glass / metal
  • Electric gate
  • Single tv system
Surface detail

Residential

Floor
1
Surface
110.0 m²
Coefficient
100%
Surface type
Main
Commercial area
110.0 m²
Price information
Price
€ 470,000
Price per m²
4,273 €/m²
Detail of costs
Condominium fees
€ 90/month
Energy efficiency
  • Year of construction

    1970
  • Condition

    Excellent / Refurbished
  • Heating

    Independent, with radiators, powered by methane
  • Air conditioner

    Independent, cold/hot
Floorplan
planimetria
Virtual tour
Discover every corner of the property
+18
Additional options

Contact the advertiser

Or