11 risultati
case di lusso in vendita zona Castello a Lecco
- 1/56sky



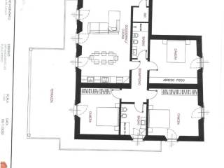
€ 630.000Quadrilocale via Col di Lana 38, Castello, Lecconuovo quadrilocale con terrazza appartamento da 150 mq oltre terrazza da circa 60mq. composto da ingresso, ripostiglio, soggiorno, cucina, accesso alla terrazza, disimpegno, ampia camera matrimoniale, bagno, due camere doppie , bagno lecco, in ottima posizione a pochi passi da centro pedonale, lago, stazione e tutti i servizi, all'inerno di nuovo contesto residenziale disponiamo personalizzazione scelta finiture possibilità di acquisto di posti auto interni scoperti una scelta ideale per chi desidera unire il piacere di una casa elegante e confortevole alla comodità di tutti i servizi con
1/42vetrina
1/52vetrina
1/18star
1/28top
1/37premium
1/26premium
1/26premium
1/14premium
1/49premium
1/18premium




























































