1.116 risultati
quadrilocali in vendita in provincia di Macerata
- 1/21sky



da € 210.000Appartamenti di nuova costruzione a Civitanova MarcheBenvenuto alle Residenze Viale Vittorio Veneto Mare, dove design raffinato ed efficienza energetica si fondono per offrirti un’esperienza abitativa esclusiva nel cuore di Civitanova Marche. La posizione strategica delle Residenze Filzi ti permette di vivere in un’oasi di tranquillità, senza rinunciare alla comodità dei principali servizi e alla vivacità del centro cittadino, ricco di boutique, ristoranti e locali. Un luogo ideale per chi desidera una casa di prestigio in un contesto residenziale riservato e curato.
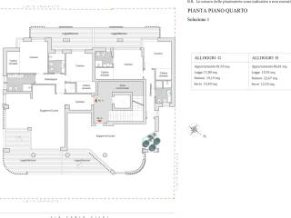
Appartamento€ 490.0004144 m²2R
Appartamento€ 590.0004120 m²24
Appartamento€ 620.0004125 m²24
Appartamento€ 210.000255 m²1R
Appartamento€ 290.000375 m²2R3 di 6 tipologie
1/22sky


€ 369.000Attico viale europa, 34, Centro, Porto RecanatiPorto Recanati, centro - proponiamo in vendita questo attico, completamente ristrutturato a nuovo. Disposto su 2 lati, orientamento verso sud ed ovest, l'immobile gode di una particolare luminosità e di spazi esterni coperti, vivibili tutto l'anno. La disposzione interna rispetta un buon equilibrio tra la zona giorno e la zona notte. Con un ampio ingresso che può fare anche da guardaroba, il salone con la cucina aperta offre un open space molto piacevole grazie anche alle ampie porte finestre verso il terrazzo orientato a sud. Il corridoio conduce verso le 3 camere da letto ed i 2 bagni. Tutti
1/31sky


€ 135.000Quadrilocale viale Europa 28, Centro, San Severino MarcheSan Severino Marche. In zona centrale, appartamento al piano terra con ingresso indipendente di mq 90 composto da soggiorno, angolo cottura arredato e completo di elettrodomestici, due camere doppie di cui la matrimoniale con servizio interno, cameretta/studio, ripostiglio, ampio bagno con piatto doccia . Lastrico esclusivo anteriore di mq 35 e corte posteriore recintata di mq 402. Quattro posti auto esclusivi. Termo autonomo e climatizzato. Portoncino blindato. Pavimentazione in monocottura, infissi in legno con vetri termici. Completamente ristrutturato nel 2010. Classe energetica D. P
1/39nuovovetrina
1/28vetrina
1/19vetrina
1/19vetrina
1/23vetrina
1/29vetrina
1/36vetrina
1/18vetrina
1/8vetrina
1/40star
1/21star
1/18star
1/21top







































