1.858 risultati
case con ascensore in vendita in provincia di Messina
- 1/34vetrina
1/19vetrina
1/22vetrina
1/30vetrina
1/26vetrina
1/41vetrina
1/12vetrina
1/37nuovovetrina
1/9vetrina


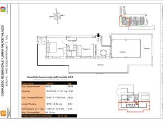
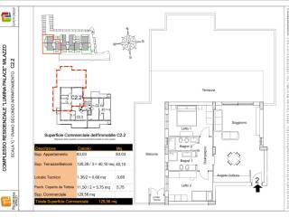
Prezzo su richiestaAppartamenti di nuova costruzione a MilazzoNel punto più strategico della città, tra via Colonnello Magistri e via Migliavacca, nasce Lumina Palace, un nuovo ed esclusivo complesso residenziale che interpreta l’abitare contemporaneo attraverso eleganza architettonica, qualità costruttiva e attenzione al comfort quotidiano. Le soluzioni sono attualmente personalizzabili, con la possibilità di scegliere finiture, materiali e distribuzioni interne in base alle proprie esigenze abitative, creando una casa su misura che rispecchi stile e funzionalità personali. Il residence si sviluppa in tre distinti corpi di fabbrica dal design moderno e
Appartamentoprezzo su richiesta293 m²13
Appartamentoprezzo su richiesta3178 m²13
Appartamentoprezzo su richiesta269 m²12
Appartamentoprezzo su richiesta3129 m²22
Appartamentoprezzo su richiesta496 m²2237 tipologie
1/31nuovovetrina
1/40vetrina
1/31vetrina
1/35vetrina
1/49vetrina
1/32vetrina
1/37vetrina
1/28star
1/23star
1/36star
1/29star
1/21star
1/10star
1/36star
1/27star
1/39star






















































